首頁 > 房屋出售 > 誠昱/786坪廠住,乙種工業地
第一房屋仲介 - 誠昱/786坪廠住,乙種工業地

誠昱/786坪廠住,乙種工業地

廠房      1億8800萬

系統編號

物件區域
717台南市仁德區

物件地址
中正路三段

地坪
786.45 坪

總建坪
363.69 坪

室內坪數
363.69 坪

主建物坪
355.95 坪

附屬建物坪數
7.74 坪

車位
車庫    

總樓層
2 樓

位於樓層
1~2 樓

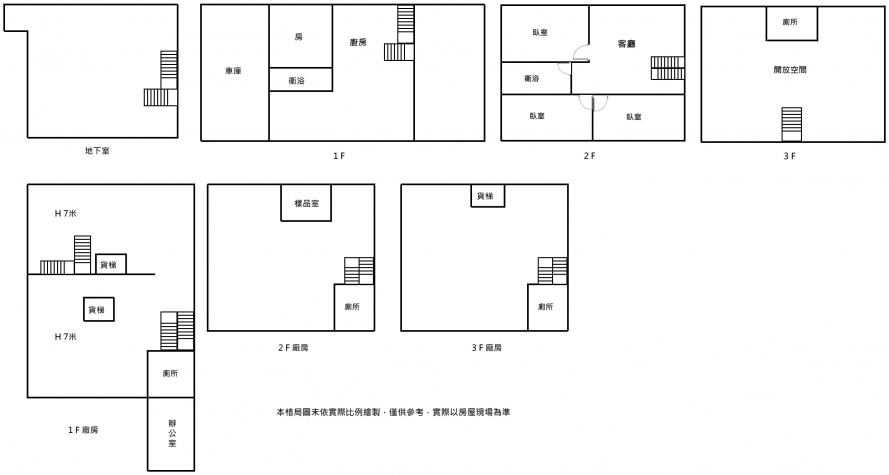
格局
4房5衛

建物結構
鋼筋混凝土(RC)

建築完工
1989年 屋齡約36年

臨路寬度
約8 米路

鄰近市場
傳統市場

公園綠地
社區公園

特色說明
1.3相動力1000馬力,發電機10K伏特
2.30噸消防水地下水池,有消防等級
3.貨梯可載堆高機,可上二樓作業,有天車2.8頓*1+1頓贈付
4.起重貨梯*2台載重1500公斤,地下室約70.08平方公尺(21.2建坪)
5.目前為生活用品射出機作業,有營登、工商登記證(消防證)
6.需約看請先聯繫安排,廠房有權狀,辦公室與避難室為96.67坪+工業用267.03坪

※以上資訊如有記載錯誤,一律依謄本登記簿為準

 - 誠昱/786坪廠住,乙種工業地
 - 誠昱/786坪廠住,乙種工業地
 - 誠昱/786坪廠住,乙種工業地
 - 誠昱/786坪廠住,乙種工業地
 - 誠昱/786坪廠住,乙種工業地
 - 誠昱/786坪廠住,乙種工業地
 - 誠昱/786坪廠住,乙種工業地
 - 誠昱/786坪廠住,乙種工業地
 - 誠昱/786坪廠住,乙種工業地
 - 誠昱/786坪廠住,乙種工業地
 - 誠昱/786坪廠住,乙種工業地
 - 誠昱/786坪廠住,乙種工業地
 - 誠昱/786坪廠住,乙種工業地
 - 誠昱/786坪廠住,乙種工業地
 - 誠昱/786坪廠住,乙種工業地
推薦物件...

誠昱/近文元國小邊間大車.

誠昱/近文元國小邊間大車.
2280 萬

誠昱/安南區近學東國小農.

誠昱/安南區近學東國小農.
488 萬

誠昱/南紡東寧裝潢孝親雙.

誠昱/南紡東寧裝潢孝親雙.
2980 萬

誠昱/新化中山路商業地+.

誠昱/新化中山路商業地+.
578 萬

誠昱/永康南應大電梯兩房

誠昱/永康南應大電梯兩房
528 萬

誠昱/副都心朝南面公園3.

誠昱/副都心朝南面公園3.
1998 萬

誠昱/永康龍王段大坪數建.

誠昱/永康龍王段大坪數建.
35000 萬

誠昱/善化東勢寮全新三房.

誠昱/善化東勢寮全新三房.
860 萬


更多..
地圖
分享到臉書